Til forsidenVeddum.dk Find ord eller søg i index, nyt eller oversigtSøg Kontakt til veddum.dkKontakt

Til forsidenMidtbyenBakkegaardsvej

 

Bakkegaardsvej 15

Huset blev bygget i 1887 som forskole med 1. og 2. klasse og virkede som sådan til 1967.

De to klasser mødte hver anden dag. I Gammelt Nyt nr. 44 2008 kan man læse Aksel Krags beretning om hans tid her i 1935 og 1936.

Veddum forskole var tysk flygtningelejr for 28 personer iflg. Flygtningeadministrationen (1950): Flygtninge i Danmark 1945-1949, Fremad, Danmark liste over tyske flygtningelejre i Danmark omkring midten af maj 1945. Det er formentlig dem, der er flyttet op i Salen.

Huset var ejet af kommunen til 1970, hvor det blev solgt til Elo Gerts, som fik etableret tagetagen i 1972.

I 1994 blev det købt af Kruse Vask.

Læs om skolerne i Veddum skole under Skolehistorie

1 / 6
https://skraafoto.dataforsyningen.dk/?center=571805.76%2C6292854.8&orientation=nadir
2 / 6
Bakkegaardsvej 15
1955 Sylvest Jensen Luftfoto; Det Kgl. Bibliotek.
http://www.kb.dk/danmarksetfraluften/images/luftfo/2011/maj/luftfoto/object1770242
3 / 6
1. klasse
4 / 6
Pogeskolen
5 / 6
Lokalhistorisk Arkiv B6168
6 / 6
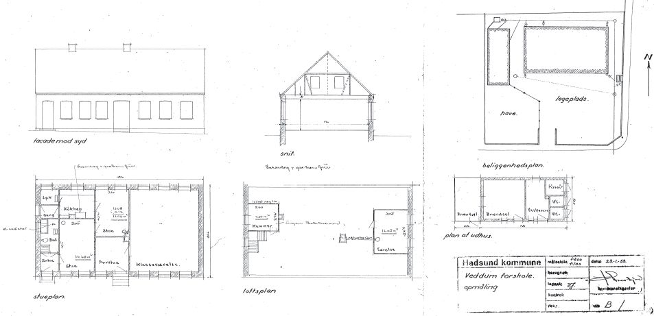
Bygningstegning fra weblager.dk

1/5 2017 https://skraafoto.dataforsyningen.dk/?center=571805.76%2C6292854.8&orientation=nadir (CC BY 4.0)
Bakkegaardsvej 15
1955 Sylvest Jensen Luftfoto; Det Kgl. Bibliotek.
http://www.kb.dk/danmarksetfraluften/images/luftfo/2011/maj/luftfoto/object1770242
1938. 1. klasse. 'Som gammel Veddum’er er jeg undertiden inde på din hjemmeside for at se, hvad der sker i Veddum.
Jeg fandt mit gamle skolebillde fra første klasse ved Frk. Jensen i den lille skole.

Jeg kan kende alle på billedet, men det kniber med navnene. Det er trods alt over 70 år siden, jeg
forlod byen. Der er vel stadig enkelte, der kan huske nogle navne.
 
Venlig  hilsen
Peter  Mikkelsen, Hammelev'
Veddum Pogeskole 1. klasse 1928 (Lokalhistorisk arkiv)
Bagerste række nr. 2 fra venstre: Robert Bonde. Yderst til højre Frk. Jensen (Læreinde Ane Marie Simonsen Jensen (født 1898)
)
Den Bette Skole Foto: lokalhistorisk arkiv B6168
Bygningstegning Veddum forskole

1887 - 1921 Jepsen

Frøken Jepsen var født i Nørresundby. Hun flyttede til sognet fra Terndrup da hun var 29 år i 1887. Da hendes mor blev enke, flyttede hun ind på skolen.

Jubilæum 1912
I går fejrede lærerinde frøken Jepsen sit 25 års jubilæum som lærerinde i Veddum. Frk. Jepsen er meget afholdt af beboerne. Kl. 6 samledes ca 200 beboere i Afholdshjemmet for at hædre jubilaren. Ved bordet herskede der den ypperligste stemning, og talerne fulgte slag i slag. Frk. Jepsen takkede dybt beværget for alt den hyldest, der blev bevist hende. Flere telegrammer ankom i dagens anledning, ligesom beboerne skænkede hende flere værdifulde gaver. /Nordjyllands Social-Demokrat 29-01-1912/

1920-1925 Svanholm

Forskolelærerinde 1920
Embedet som forskolelærerinde ved Veddum Skole i Skelund-Visborg kommune opslås herved ledigt. Begyndelsesløn 1900 kr (afkortning for bolig 1/12 af dette beløb); bolig bestående af 3 værelser, pigekammer, køkken, bryggers og spisekammer; til embedets hører en mindre have. Ansøgninger om dette embede - på de dertil indrettede trykte skemaer- stiles til skoledirektionen for Hellum og Hindsted Herreder og indsendes, ledsagede af bekræftede genparter af eksamensbevis, anbefalinger mv., til provst M. F. Høfler, Postadresse: Als Præstegård, Østjylland inden den 17. april. /Jyllandsposten 09-04-1920/

Lærerinde 1920
Skoledirektionen meddeler at lærerinde frk Svanholm, Almind, er blevet kaldet som lærerinde ved Veddum forskole fra 1. juli. Nr. 1 og 2 havde trukket deres ansøgninger tilbage. /Nordjyllands Social-Demokrat 03-07-1920/

1920
Sognerådet bevilger lærerinde frk. Svanholm, forskolen i Veddum, en del ansøgt materiel til brug i skolen. /Nordjyllands Social-Demokrat 10-11-1920/

gymnastikinspektion 1922
Sognerådet fik en henstilling fra gymnastikinspektøeren om, at afhjælpe forskellige mangler ved kommunens skoler. Veddum forskoles gymnastikplads skal påføres bagharpning samme anskaffes forskellige gymnastikredskaber. Sognerådet henstiller af gymnastikken i Veddum forlægges til hovedskolen, hvor de nødvendige rekvisitter forefindes. /Nordjyllands Social-Demokrat 19-04-1922/

sybord 1922
Lærerinde, frk. Svanholm, søger om et sybord til brug ved undervisningen i håndgerning samt nogle håndklæder. Renholdelsen tilbyder hun selv at lade foretage. /Nordjyllands Social-Demokrat 19-04-1922/

lærerinde 1923
Lærerinde frk. Kirstine Nielsen, datter af Johs. Nielsen, Vinderup, er antaget som forskolelærerinde ved Veddum skole. /Holstebro Dagblad 14-08-1923/

1925
Sognerådet bevilgede lærerinde frk. Svanholm, Veddum, afsked fra 1. oktober, med ret til fratrædelse fra 15. september mod, at frøkenen selv lønner vikar fra 15. september til 1. oktober. /Aalborg Amtstidende 26-08-1925/

Amerika 1925
Tirsdag den 15. ds. Forlader forskolelærerinde frøken C. Svanholm Veddum. Frøkenen vil udvandre og bosætte sig i Amerika. De er et års tid siden, hun vendte hjem derfra efter et års ferieophold. /Aalborg Amtstidende 10-09-1925/

1925 Christensen

I 1925 kom en ung, nyuddannet lærerinde frk. Christensen fra Ranum.

  • lærerinde husmoder Clara Margrethe Christensen (1904 /1925)

1925 - Jensen

Ledigt embede 1925
Embedet som forskolelærerinde ved Veddum Forskole opslås ledigt. Grundløn 1900 kr. (Afkortning for brug af embedsbolig 158 kr. 34 øre årligt. Bolig bestående af dagligstue, soveværelse, gæsteværelse, pigeværelse og køkken. Have 90 m2 god muldjord. Ansøgninger -på skema- stiles til Skoledirektionen og indsendes med bekræftet genpart af eksamensbevis, anbefalinger mv. til provst M. F. Høfler, Als Præstegård inden 29. september. /Jyllandsposten 09-09-1925/

Til forskolelærerindeembedet i Veddum er indstillet som nr. 1 frk. Marie Jensen, Gåser (Ø. Hassing). Der var 20 ansøgninger, hvoraf 10 kvalificerede.

1970 - 1986 Elo Gerts

Elo Gerts er født i Helberskov. Han har boet i den bette skole og fik bygget Hovedgaden 33. Da hans kone Karen døde i 1992 boede de i en andelsbolig i Als. Derefter købte han huset her. Han døde 2002 på plejehjemmet i Als.

Tjenestefolk mv.

 

Kommenter 10.10.2025

Folketælling

1901 1906 1911 1921 1925 1930 1940

Tingbog

matr. 21l
 

Bakkegaardsvej